来源:山东吉祥装饰建材有限公司 时间:2026-02-26 阅读量:421


马拉霍夫斯基大楼是赫伯特·韦特海姆工程学院、医学院以及药学院中以数据和人工智能为核心的教学与研究项目的中心枢纽。在这里,来自佛罗里达大学这些学院以及其他学院的教职员工和学生共同合作,利用数据分析和人工智能来改善健康状况;设计下一代机器人、无人驾驶车辆和通信系统;并确保人工智能的使用符合道德和公平原则。这座获得 LEED 白金认证的项目特意选址在靠近雷兹学生会的显眼位置,旨在吸引广泛的校园参与和探索。
Malachowsky Hall is the central hub for data- and AI-focused academic and research programs from the Herbert Wertheim College of Engineering, the College of Medicine, and the College of Pharmacy. Here, faculty and students from these and other colleges at the University of Florida work together to use data analytics and AI to improve health; engineer the next generation of robotics, unmanned vehicles, and communication systems; and ensure AI is used ethically and equitably. Intentionally positioned at a prominent location near the Reitz student union, the LEED Platinum project welcomes broad campus engagement and exploration.

这座建筑的外立面采用了 1500 块定制金属板单元进行覆盖,这与校园内普遍使用的砖块材料形成了鲜明对比。这些预制金属板有助于实现预算和可持续发展目标,同时营造出随着一天中光线变化而变化的极具冲击力的外观。典型的雨水防护板模块为 6 英尺乘 7.5 英尺的折叠铝板,是一种单一的独特几何形状,通过旋转和镜像处理来形成动态的表达效果。
The building's exterior, clad in 1,500 custom metal panel units, is a marked departure from the predominant use of brick throughout campus. The prefabricated panels helped achieve budget and sustainability goals, while creating a striking presence that changes with shifting light throughout the day. The typical rainscreen panel module, a 6' x 7.5' folded aluminum sheet, is a single unique geometry that is rotated and mirrored to create a dynamic expression.



工厂预制的面板有助于按时完成任务,并能实现更严格的质量控制。预制幕墙内的窗户形状采用了电致变色玻璃,这种玻璃会根据太阳的照射路径进行变色,使每个单元都能减少对使用者的眩光影响。该项目所有的玻璃,包括电致变色窗户,都采用了防鸟碎玻璃花纹。
Shop-manufactured panels aided in meeting an ambitious schedule and allowed for greater quality control. Window shapes within the panelized facade contain electrochromic glazing, which responds to the path of the sun, tinting each unit to mitigate glare for occupants. All glazing on the project, including the electrochromic windows, features a bird-safe frit pattern.



空间规划的目标包括:为集中工作和团队协作提供区域;在各个部门以及整个建筑内实现灵活性;普及采光和视野的使用;通过创造自发交流的机会来减少部门之间的隔阂。尽管某些部门的工作需要一定的隐私空间,但设计团队还是制定了鼓励跨学科思想交流和研究的策略。
Space-planning goals included providing areas for focused and group work; flexibility within departments and throughout the building; democratizing access to daylight and views; and reducing siloing by creating opportunities for spontaneous interaction. Although privacy was necessary for some departmental work, the design team developed strategies for encouraging cross-pollination of ideas and research across fields of study.



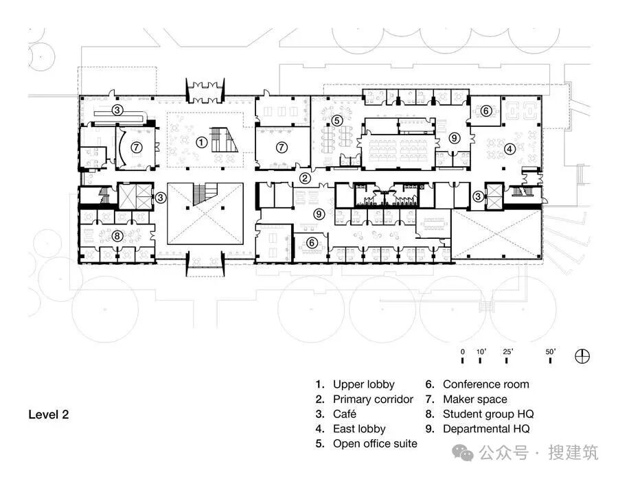
一个光线充足的中央公共区域将各个部门连接起来,并贯穿了整栋建筑的各个楼层。每一层都被划分为一系列“学术社区”,其中包括聚会空间、办公室、会议室、创客空间以及各部门的总部。这种多样性促进了来自不同研究实验室的学生之间的交流,并为不同的工作方式提供了灵活性。
A light-filled central commons connects departments and opens all levels of the building. Each floor is broken into a series of "academic villages" with spaces to gather, offices and meeting rooms, makerspaces, and departmental headquarters. This variety promotes interaction between students from different research laboratories and provides flexibility for different working styles.



在马拉霍夫斯基大楼里,学生和教职员工能够享受到许多在单一场所中难以见到的环境设施,比如高架层的机器人实验室、专门用于网络安全和人工智能的制作空间,以及可轻松调整布局的教室。鉴于工作内容的多样性以及技术发展的快速变化,研究实验室的设计就像制作空间一样,允许使用者根据需求、技术以及人员的变化来定制其环境。
At Malachowsky Hall, students and faculty have access to an array of environments seldom found under one roof, including a high-bay robotics lab, dedicated makerspaces for cybersecurity and AI, and easily reconfigurable classrooms. Given the diversity of work and the rapid pace at which technology evolves, research labs were designed like makerspaces, allowing users to customize their environment as needs, technology, and personnel change.

针对在持续进行的科学研究中对透明度和隐私的相互冲突的需求,大多数研究场所都设在公共区域,既保持可见性以展示其活动中心的地位,同时又因研究内容的敏感性而保持一定的隔离度。一个可容纳 300 人的礼堂和一个可容纳 150 人的多功能厅为大学在马拉科夫斯基大楼内举办各种规模的活动和讲座提供了新的空间。
Responding to the competing desires for transparency and privacy in ongoing scientific research, most are positioned around the commons, visible as hubs of activity while maintaining separation for the sensitive nature of the work. A 300-seat auditorium and 150-person multipurpose forum provide new capacity for the University to host events and lectures of varied scales within Malachowsky Hall.

项目图纸







▲平面图

▲剖面图

▲立面图

扫描关注官方公众号